Richmond Homes
  • 910-859-9571
  • NEW HOMES
  • ABOUT US
  • WHERE WE BUILD
    • Charlotte, NC
    • Wilmington, NC
  • BLOG
  • CONTACT
  • CLIENT LOGIN

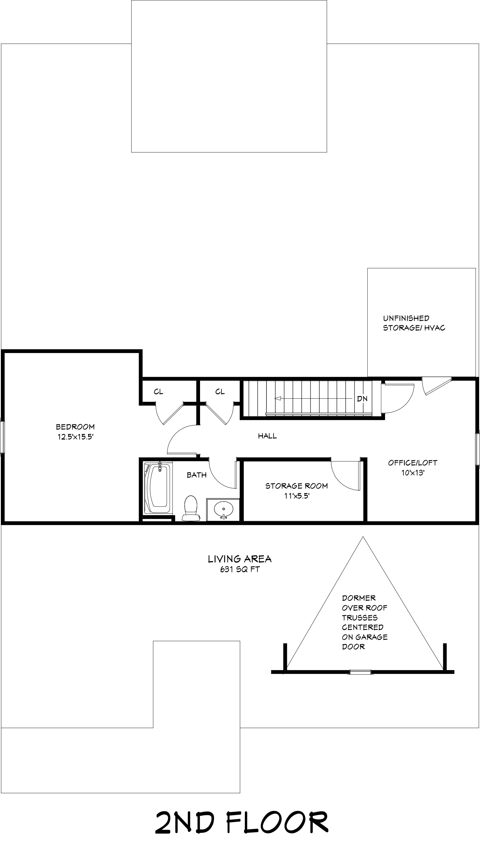
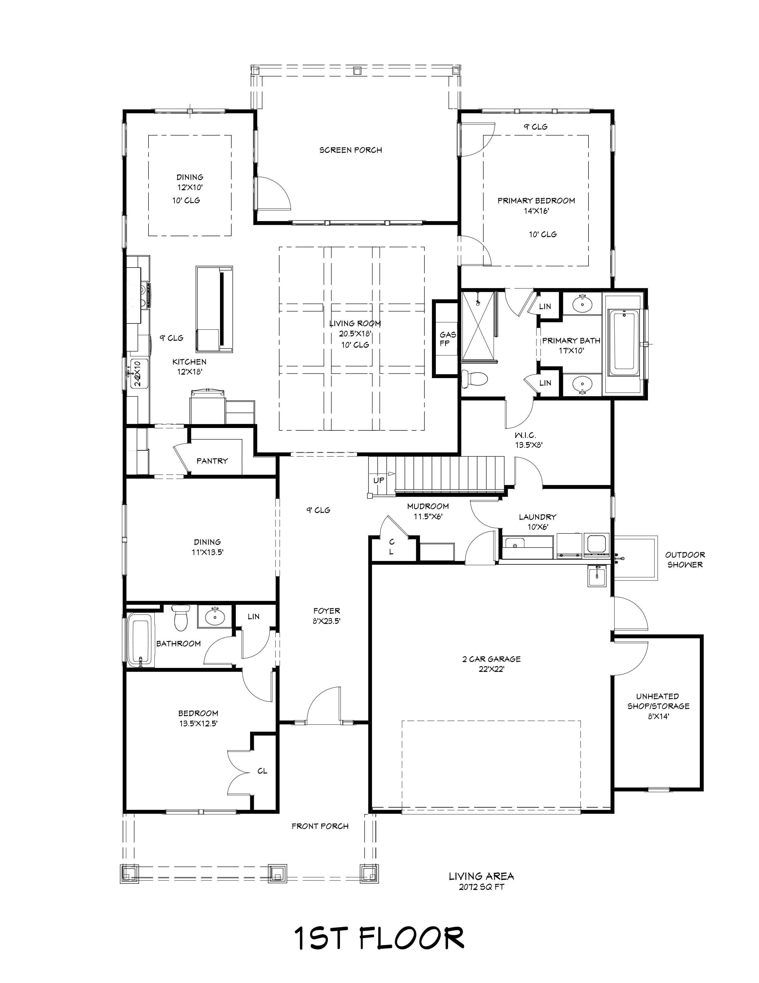
Angela's Retreat Floor Plan

 
WANT TO LEARN MORE? LET’S CONNECT.

This site is protected by reCAPTCHA and the Google Privacy Policy and Terms of Service apply.
Logo_Horiz_Richmond-Homes_2
  • NEW HOMES
  • ABOUT US
  • BLOG
  • CONTACT
  • phone-png-1
  • mail-png-1
  • facebook-image
  • instagram icon
footer-logo-two

Areas Served:

  • Wilmington, NC
  • Charlotte, NC
  • Leland, NC
  • Hampstead, NC
  • Southport, NC
  • Brunswick County
  • New Hanover County
  • Pender County

497 Olde Waterford Way Suite 202-109
Leland, NC 28451

© Copyright 2026 Richmond Homes
All Rights Reserved. Made in Wilmington.